Обяви 0 За нас Контакти
Продава КЪЩА
град София, с. Бистрица
715 680 €
1 399 748.41 лв.

(2 520 €, 4 928.69 лв./m2)
Цената е с включено ДДС
История на цената
Коригирана в 3:15 на 28 ноември, 2025 год.
Обявата е посетена 1519 пъти.
Площ:
284 m2
Двор:
55 m2
Газ:
ДА
ТEЦ:
НЕ
Строителство:
Тухла, 2025 г.

Описание на имота:


Висок клас затворен жилищен комплекс във в.з. Бистрица, който се характеризира с устойчива архитектура, модерен прагматизъм и солидно строителство.

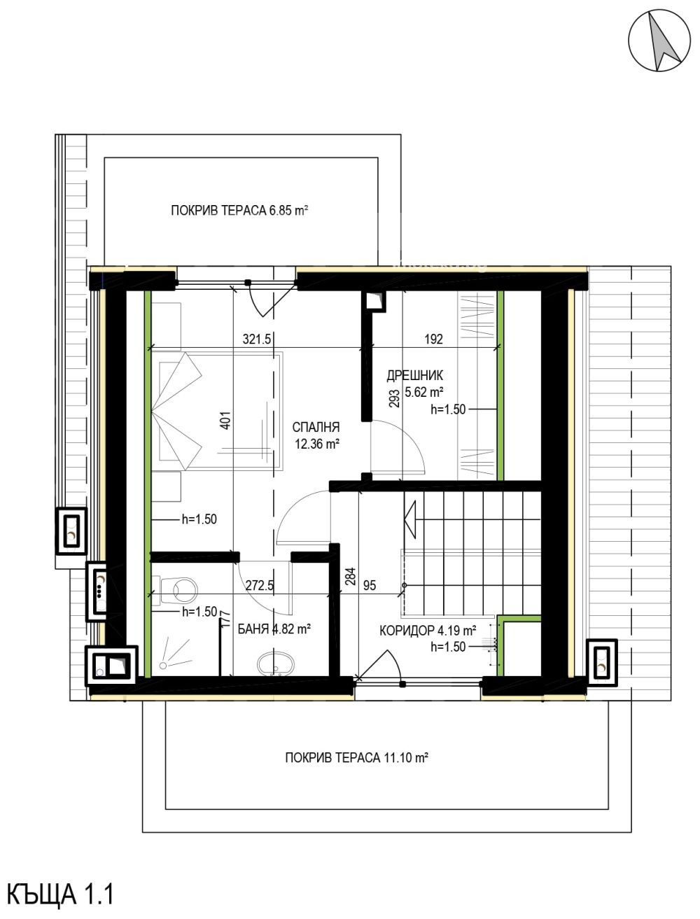
Къща 3.1 се състои от партерно ниво с обособен хол, трапезарна и кухненска част, излаз към веранда, санитарни и помощни помещения, на първи етаж са разположени две просторни спални, всяка със собствена баня, третото ниво е обособено като самостоятелна стая с дрешник и санитарно помещение, както и панорамна покривна тераса. На полусутерен имаме хоби стая със санитарно помещение и обслужващи пространства.
Разположен е в зона с нискоетажно застрояване. Тихо и спокойно място, със зеленина, по-чист въздух и изглед към София и Витоша. Съседните частни имоти не просто подобряват естетиката на квартала, но и повишават цената на имотите, като гарантират добрата ликвидност на къщите в комплекса.
100% Stress Free жилищна среда, която напълно усвоява всички предимства на заобикалящата природа и на феноменалната гледка към София. Проектът е замислен като притежаващ собствен специфичен микроклимат, предпоставка да се изгради малка и сплотена общност.

Собствен заден двор, сепариран с жив плет - място за отдих и забавление. Собствена барбекю зона. Място за паркиране на един или повече от един автомобил.
Панорамна, широкоспектърна гледка към София на север и Витоша на юг, които няма да бъдат закрити от високо строителство.

Уникален терен и разчупено шахматно разположение на отделните къщи, което осигурява завладяваща гледка от всяка от къщите. Френски прозорци във всяко помещение за непрекъснат контакт с елегантния ландшафт.

Удобен автомобилен достъп, както и възможност за ползване на градски траспорт.
... Обади се сега и цитирай този код 655074
Особености
Тухла
С гараж
За контакт:
088 21 21 488
Брокер:
Офис 'пл. Света Неделя' Имотека София
0882 121 488
Офис: София, Център, пл. Света Неделя 4, ет.1
Още оферти от брокера: Продава | Дава под наем | Купува | Наема
Агенция:
ИМОТЕКА
0882 121 488
ИМОТЕКА logo
Медал за прослужено време
В imot.bg от 2015 г.
imoteka.imot.bg
Адрес:
област София, гр. София, пл. Света Неделя 4
http://www.imoteka.bg
ИЗПРАТИ ЗАПИТВАНЕ
ИЗПРАТИ ЗАПИТВАНЕТО

Продава КЪЩА
град София, с. Бистрица
Обява: 1j175930111051363

715 680 €
1 399 748.41 лв.
История на цената
(2 520 €, 4 928.69 лв./m2)

Цената е с включено ДДС
ЗАПАЗИ ОБЯВАТА

Местоположение: град София, с. Бистрица

Допълнителни данни за имотите в района и сравнение с други райони

Покажи

Период

и 5 месеца

* Средните цени са определени чрез медианна стойност