Обяви За нас Контакти
Продава 3-СТАЕН
град София, Малинова долина
291 500 €
570 124.45 лв.

(2 699 €, 5 278.79 лв./m2)
Не се начислява ДДС
История на цената
Публикувана в 16:15 на 23 март, 2026 год.
Обявата е посетена 37 пъти.
Площ:
108 m2
Етаж:
2-ри от 4
Газ:
НЕ
ТEЦ:
НЕ
Строителство:
Тухла, Въведен в експлоатация 2025 г.

Описание на имота:


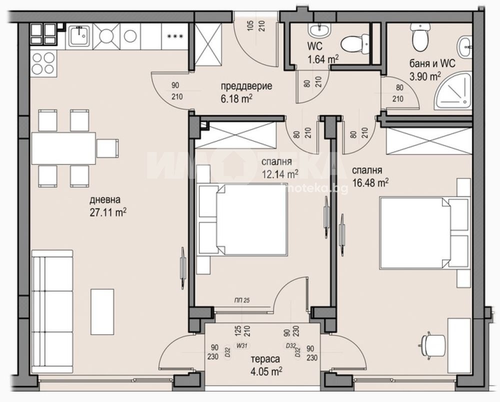
Тристаен апартамент с обща площ от 108кв.м.

Имотът е със следното разпределение: входно антре, две спални, просторен хол с кухненски бокс, баня с тоалетна, тоалетна, тераса. Мазе към апартамента.

Етаж - 2/4.

Изложение - изток.

Наземни паркоместа - 25 000евро.

Гаражи ниво сутерен - от 39 000евро до 43 000евро.
кв. Малинова долина на метри от новия булевард Крикор Азарян, в блиозст до Детска градина.
Нова, луксозно изпълнена сграда с внимание към най-малкия детайл!

Керамичната фасада на Tempio предоставя не само външен блясък но и изключителни функционални и устойчиви качества. Серия RUSTIKOTTA.

Шумоизолация между стените, керамичните тухли WINERBERGER PHOROTHERM са с обемна плътност между 575 и 1000 kg/m3

Шумоизолация на тръбите.

Дограма REHAU SYNEGO представлява иновативно и функционално решение за модерни сгради. Съчетавайки енергийна ефективност, звукоизолация, устойчивост и естетика, тя отговаря на всички изискванията за съвременно жилище.

Прозорците SYNEGO подобряват качеството на живот, тъй като са снабдени с трета допълнителна уплътнителна равнина и ограничават шума до 47 децибела. Това е приблизително равносилно на шума от косачка за трева на разстояние няколко метра. По този начин с прозорците SYNEGO се постига до 26 пъти намаляване на шума

Ексклузивен достъп до технологии. Като изпълнител, 4SMART има ексклузивен достъп до последните технологични постижения на KRYTON, което осигурява, последните технологични тенденции в областта на хидроизолацията

ВХОДНИ БИЛНДИРАНИ ВРАТИ ОТ SOLID Smart Doors.

Вратите 30S на SOLID 55 са юбилеен модел, който съчетава в себе си две независими заключващи системи. Едното е добре познатият от всеки, стандартен ключ и отделно вратата разполага с независимо скрито електрическо заключване. Допълнителната сигурност никога не е излишна! SBS (Security Block System) представлява блокиране на електрическата ключалка при механично заключване с ключ.

Домът на Бъдещето с Ajax Systems.

SMART видеодомофонна система с включено видеонаблюдение.
Високо енерго и технологично ефективна сграда, отлични разпределения, луксозна визия на общи части и фасада.

Цени с ДДС. С АКТ 14.

Разрешение за ползване - лятото на 2026г.
... Обади се сега и цитирай този код 685769
Особености
Тухла
Асансьор
За контакт:
088 21 21 488
Брокер:
Офис 'пл. Света Неделя' Имотека София
0882 121 488
Офис: София, Център, пл. Света Неделя 4, ет.1
Още оферти от брокера: Продава | Дава под наем | Купува | Наема
Агенция:
ИМОТЕКА
0882 121 488
ИМОТЕКА logo
Медал за прослужено време
В imot.bg от 2015 г.
imoteka.imot.bg
Адрес:
област София, гр. София, пл. Света Неделя 4
http://www.imoteka.bg
ИЗПРАТИ ЗАПИТВАНЕ
ИЗПРАТИ ЗАПИТВАНЕТО

Продава 3-СТАЕН
град София, Малинова долина
Обява: 1c177427535379909

291 500 €
570 124.45 лв.
История на цената
(2 699 €, 5 278.79 лв./m2)

Не се начислява ДДС
ЗАПАЗИ ОБЯВАТА

Местоположение: град София, Малинова долина

Допълнителни данни за имотите в района и сравнение с други райони

Покажи

Период

и 3 месеца

* Средните цени са определени чрез медианна стойност