Обяви За нас Контакти
Продава 3-СТАЕН
град София, Манастирски ливади
236 082 €
461 736.26 лв.

(2 485 €, 4 860.24 лв./m2)
Цената е с включено ДДС
История на цената
Публикувана в 12:20 на 17 март, 2026 год.
Обявата е посетена 51 пъти.
Площ:
95 m2
Етаж:
4-ти от 6
Газ:
ДА
ТEЦ:
НЕ
Строителство:
Тухла, Ще бъде въведен в експлоатация 2028 г.

Описание на имота:


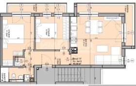
ТРИСТАЕН АПАРТАМЕНТ с площ 95,58м2/ ЗП 78,18м2. Изложение запад/север.
Един от най-предпочитаните и динамично развиващи се райони на София кв.Манастирски ливади изток. Локацията е в близост до бул. България , с лесен достъп до центъра на София, основните транспортни артерии на столицата, Околовръстен път и главни улици.
Елегантна, жилищна сграда на шест етажа, с две подземни нива за паркиране, партерни апартаменти и впечатляваща визия! Перфектна функционалност на всички апартаменти! Визията на сградата е с модерен дизайн, архитектурата е смесица от изчистени линии, комбинации от различни материали и много светлина. Еталон на лукса и професионализма в строителството. Апартаментите в нея са проектирани, за да осигурят на собствениците си функционалност, комфорт и уют. Залага се на изпълнение с висококачествени материали, съобразени с всички тенденции за строителство и урбанизация!


Безкомпромисно качество и изпълнение от най-висок клас, от инвеститор с множество реализирани проекти. Предпочитан квартал и отлична инфраструктора!

Избор на апартаменти!

Добри варианти на схеми на плащане!

Срок на завършване: Второто полугодие на 2028 г.


Обади се сега и цитирай този код 680603
Особености
Тухла
Асансьор
За контакт:
088 21 21 488
Брокер:
Офис 'пл. Света Неделя' Имотека София
0882 121 488
Офис: София, Център, пл. Света Неделя 4, ет.1
Още оферти от брокера: Продава | Дава под наем | Купува | Наема
Агенция:
ИМОТЕКА
0882 121 488
ИМОТЕКА logo
Медал за прослужено време
В imot.bg от 2015 г.
imoteka.imot.bg
Адрес:
област София, гр. София, пл. Света Неделя 4
http://www.imoteka.bg
ИЗПРАТИ ЗАПИТВАНЕ
ИЗПРАТИ ЗАПИТВАНЕТО

Продава 3-СТАЕН
град София, Манастирски ливади
Обява: 1c177374282763841

236 082 €
461 736.26 лв.
История на цената
(2 485 €, 4 860.24 лв./m2)

Цената е с включено ДДС
ЗАПАЗИ ОБЯВАТА

Местоположение: град София, Манастирски ливади

Допълнителни данни за имотите в района и сравнение с други райони

Покажи

Период

и 3 месеца

* Средните цени са определени чрез медианна стойност