Обяви За нас Контакти
Продава 2-СТАЕН
град София, Обеля 2
169 000 €
330 535.27 лв.

(2 414 €, 4 721.37 лв./m2)
Не се начислява ДДС
История на цената
Публикувана в 15:45 на 5 февруари, 2026 год.
Обявата е посетена 148 пъти.
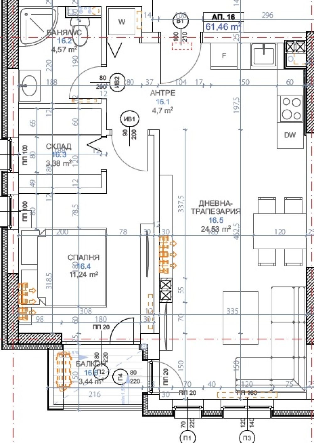
Площ:
70 m2
Етаж:
3-ти от 6
Газ:
НЕ
ТEЦ:
ДА
Строителство:
Тухла, 2024 г.

Описание на имота:


Двустаен апартаметн завършен до клиюч с подови настилки и готова баня. Състои се от днесна с кухненски бокс, спалня, баня с тоалетна и тераса.
к.в. Обеля 2 в непосредствена близост до 140 СОУ.
Новопостроена сграда с акт 16 от 2024г. Видеонаблюдение, домофони и отлични общи части.
Нова сграда с АКТ 16. Завършен апартамент. 10мин от метростанция. В близост до хранителни магазини, училище и детска градина. Опция за паркомясто или гараж.
Обади се сега и цитирай този код 676640
Особености
Тухла
Асансьор
За контакт:
088 21 21 488
Брокер:
Офис 'пл. Света Неделя' Имотека София
0882 121 488
Офис: София, Център, пл. Света Неделя 4, ет.1
Още оферти от брокера: Продава | Дава под наем | Купува | Наема
Агенция:
ИМОТЕКА
0882 121 488
ИМОТЕКА logo
Медал за прослужено време
В imot.bg от 2015 г.
imoteka.imot.bg
Адрес:
област София, гр. София, пл. Света Неделя 4
http://www.imoteka.bg
ИЗПРАТИ ЗАПИТВАНЕ
ИЗПРАТИ ЗАПИТВАНЕТО

Продава 2-СТАЕН
град София, Обеля 2
Обява: 1b177029911886564

169 000 €
330 535.27 лв.
История на цената
(2 414 €, 4 721.37 лв./m2)

Не се начислява ДДС
ЗАПАЗИ ОБЯВАТА

Местоположение: град София, Обеля 2

Допълнителни данни за имотите в района и сравнение с други райони

Покажи

Период

и 2 месеца

* Средните цени са определени чрез медианна стойност