Обяви За нас Контакти
Продава 2-СТАЕН
град София, Обеля
161 890 €
316 629.32 лв.

(2 313 €, 4 523.83 лв./m2)
Не се начислява ДДС
История на цената
Публикувана в 9:30 на 3 февруари, 2026 год.
Обявата е посетена 44 пъти.
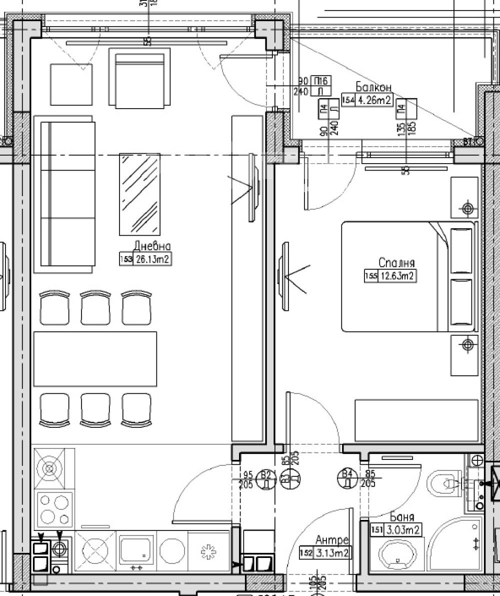
Площ:
70 m2
Етаж:
2-ри от 4
Газ:
НЕ
ТEЦ:
НЕ
Строителство:
Тухла, 2026 г.

Описание на имота:


Напълно обзаведен двустаен апартамент състоящ се от дневна с кухненски бокс, спалня, баня с тоалетна и тераса.
к.в. Обеля, в непосредствена близост до площада, хранителен магазин и спирка на градски транспорт.
Ново построена сграда с АКТ 15.
Напълно обзаведен. Готов за живеене апартаемтн.
Обади се сега и цитирай този код 676313
Особености
Тухла
Асансьор
Обзаведен
За контакт:
088 21 21 488
Брокер:
Офис 'пл. Света Неделя' Имотека София
0882 121 488
Офис: София, Център, пл. Света Неделя 4, ет.1
Още оферти от брокера: Продава | Дава под наем | Купува | Наема
Агенция:
ИМОТЕКА
0882 121 488
ИМОТЕКА logo
Медал за прослужено време
В imot.bg от 2015 г.
imoteka.imot.bg
Адрес:
област София, гр. София, пл. Света Неделя 4
http://www.imoteka.bg
ИЗПРАТИ ЗАПИТВАНЕ
ИЗПРАТИ ЗАПИТВАНЕТО

Продава 2-СТАЕН
град София, Обеля
Обява: 1b177010380546540

161 890 €
316 629.32 лв.
История на цената
(2 313 €, 4 523.83 лв./m2)

Не се начислява ДДС
ЗАПАЗИ ОБЯВАТА

Местоположение: град София, Обеля

Допълнителни данни за имотите в района и сравнение с други райони

Покажи

Период

и 1 месец

* Средните цени са определени чрез медианна стойност