Обяви 0 За нас Контакти
Продава 2-СТАЕН
град София, Малинова долина
216 700 €
423 828.36 лв.

(3 052 €, 5 969.19 лв./m2)
Не се начислява ДДС
История на цената
Публикувана в 18:00 на 27 януари, 2026 год.
Обявата е посетена 772 пъти.
Площ:
71 m2
Етаж:
4-ти от 4
Газ:
НЕ
ТEЦ:
НЕ
Строителство:
Тухла, 2025 г.

Описание на имота:


Двустаен апартамент в Окинава Бутик Резиденс в Малинова долина.

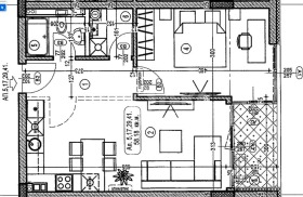
Застроена площ 58,18 кв.м / обща площ 71,13 кв.м.

Състои се от входно антре 5,14 кв.м, дневна 21,21,75 кв.м, спалня 13,8 кв.м, тераса 4,60 кв.м, баня с тоалетна 2.75 кв.м., мокро помещение 2,45 кв.м.

Отопление с климатици, или термопомпа, с изводи за конвектори във всяка стая.

Възможност за закупуване на подземно паркомясто на цена 35000 евро.
Окинава Бутик Резиденс се намира в квартал Малинова долина .

Ключова локация в съседство с търговски център ФАНТАСТИКО на бул. Симеоновско шосе.

Бърз достъп до главни булеварди и основни атракции на столичния град.
Окинава Бутик Резиденс

Престижна сграда в премиум сегмента. Впечатляваща модернистична визия

Първокласни материали и оборудване, авангардни технологични решения

Луксозни общи части, асансьори SCHINDLER, настилки от естествен камък, фонова музика

Вентилируема фасада от LAMINAM, алуминиева дограма ALUMIL с троен стъклопакет и топъл дистанционер

Висока енергийна ефективност и благоприятен микроклимат чрез специална концепция за топлоизолиране, оптимално разходване на енергията и висока степен на комфорт през всеки сезон

Влагорегулиращи стени с дишаща варова мазилка KLIMAWHITE

Шумоизолирани жилища с двойни зидове 'сандвич', подово отопление REHAU на термопомпа или газ

Богато озеленяване с истинска японска дзен градина, алеи за разходка с пейки и фитнес на открито

Проектът се изгражда по специален модел за висока енергийна ефективност и качествена жилищна среда HEALTHY BUILDING CONCEPT

Проектът се изгражда с финансовата подкрепа на ALLIANZ BANK

Главен изпълнител е реномираната строителна компания ELITE BUILDING
Предимства: Престижна сграда в Премиум клас строителство. Акт 16.Паркомясто.
... Обади се сега и цитирай този код 682095
Особености
Тухла
Асансьор
С гараж
За контакт:
088 21 21 488
Брокер:
Офис 'пл. Света Неделя' Имотека София
0882 121 488
Офис: София, Център, пл. Света Неделя 4, ет.1
Още оферти от брокера: Продава | Дава под наем | Купува | Наема
Агенция:
ИМОТЕКА
0882 121 488
ИМОТЕКА logo
Медал за прослужено време
В imot.bg от 2015 г.
imoteka.imot.bg
Адрес:
област София, гр. София, пл. Света Неделя 4
http://www.imoteka.bg
ИЗПРАТИ ЗАПИТВАНЕ
ИЗПРАТИ ЗАПИТВАНЕТО

Продава 2-СТАЕН
град София, Малинова долина
Обява: 1b176952961284010

216 700 €
423 828.36 лв.
История на цената
(3 052 €, 5 969.19 лв./m2)

Не се начислява ДДС
ЗАПАЗИ ОБЯВАТА

Местоположение: град София, Малинова долина

Допълнителни данни за имотите в района и сравнение с други райони

Покажи

Период

и 5 месеца

* Средните цени са определени чрез медианна стойност