Обяви За нас Контакти
Продава 1-СТАЕН
град София, Малинова долина
93 972 €
183 793.26 лв.

(2 136 €, 4 177.65 лв./m2)
Не се начислява ДДС
История на цената
Коригирана в 10:55 на 19 февруари, 2026 год.
Обявата е посетена 1772 пъти.
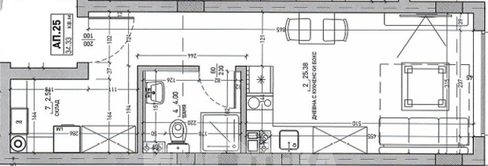
Площ:
44 m2
Етаж:
1-ви от 5
Газ:
НЕ
ТEЦ:
НЕ
Строителство:
Тухла, 2027 г.

Описание на имота:


Едностаен апартамент - коридор, дневна с кухненски бокс, баня и 11,58 кв.м.озеленено дворче, Подземни паркоместа - 25 000 , подземни гаражи - 30 000 .

Върху парцел с площ 6141 кв.м., е проектиран съвременен жилищен комплекс, състоящ се от три сгради с хармонична архитектура и модерна визия.

Комплексът предлага оптимален баланс между застрояване и природа над 2177 кв.м. са предвидени за озеленяване, като зелените площи са разпределени в паркови кътове за отдих, детска площадка и богато озеленени алеи.


Най-бързо развиващият се столичен квартал Малинова долина, със сравнително ниска гъстота на застрояване , което дава усещане за повече пространство. Намира се в подножието на Витоша, което осигурява чист въздух и красива гледка. В близост са бул. Симеоновско шосе и Околовръстния път, което улеснява достъпа както до центъра, така и до изходите на София.
Трите сгради са с нискоетажно застрояване, което създава усещане за простор и комфорт. Всяка сграда разполага с подземни и надземни паркоместа, а жилищата са проектирани с функционални разпределения и големи прозорци, осигуряващи естествена светлина и гледки към Витоша.
Планирано развитие новият ПУП ще въведе ред в уличната мрежа, инфраструктурата и регулацията на имотите. Това означава по-добри улици, зелени площи и канализация, вместо хаотично строителство.
Обади се сега и цитирай този код 668856
Особености
Тухла
Асансьор
За контакт:
088 21 21 488
Брокер:
Офис 'пл. Света Неделя' Имотека София
0882 121 488
Офис: София, Център, пл. Света Неделя 4, ет.1
Още оферти от брокера: Продава | Дава под наем | Купува | Наема
Агенция:
ИМОТЕКА
0882 121 488
ИМОТЕКА logo
Медал за прослужено време
В imot.bg от 2015 г.
imoteka.imot.bg
Адрес:
област София, гр. София, пл. Света Неделя 4
http://www.imoteka.bg
ИЗПРАТИ ЗАПИТВАНЕ
ИЗПРАТИ ЗАПИТВАНЕТО

Продава 1-СТАЕН
град София, Малинова долина
Обява: 1a176485110875531

93 972 €
183 793.26 лв.
История на цената
(2 136 €, 4 177.65 лв./m2)

Не се начислява ДДС
ЗАПАЗИ ОБЯВАТА

Местоположение: град София, Малинова долина

Допълнителни данни за имотите в района и сравнение с други райони

Покажи

Период

и 3 месеца

* Средните цени са определени чрез медианна стойност