Обяви За нас Контакти
Продава 1-СТАЕН
град София, Малинова долина
79 312 €
155 120.79 лв.

(1 983 €, 3 878.41 лв./m2)
Не се начислява ДДС
История на цената
Коригирана в 3:15 на 24 октомври, 2025 год.
Обявата е посетена 766 пъти.
Площ:
40 m2
Етаж:
3-ти от 5
Газ:
НЕ
ТEЦ:
НЕ
Строителство:
Тухла, 2027 г.

Описание на имота:


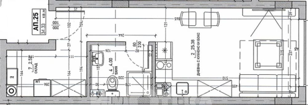
Едностаен апартамент с доста приятно разпределение - склад, коридор, дневна, Подземни паркоместа - 25 000 , подземни гаражи - 30 000 .

Върху парцел с площ 6141 кв.м., е проектиран съвременен жилищен комплекс, състоящ се от три сгради с хармонична архитектура и модерна визия.

Комплексът предлага оптимален баланс между застрояване и природа над 2177 кв.м. са предвидени за озеленяване, като зелените площи са разпределени в паркови кътове за отдих, детска площадка и богато озеленени алеи.


Най-бързо развиващият се столичен квартал Малинова долина, със сравнително ниска гъстота на застрояване , което дава усещане за повече пространство. Намира се в подножието на Витоша, което осигурява чист въздух и красива гледка. В близост са бул. Симеоновско шосе и Околовръстния път, което улеснява достъпа както до центъра, така и до изходите на София.
Трите сгради са с нискоетажно застрояване, което създава усещане за простор и комфорт. Всяка сграда разполага с подземни и надземни паркоместа, а жилищата са проектирани с функционални разпределения и големи прозорци, осигуряващи естествена светлина и гледки към Витоша.
Планирано развитие новият ПУП ще въведе ред в уличната мрежа, инфраструктурата и регулацията на имотите. Това означава по-добри улици, зелени площи и канализация, вместо хаотично строителство.
Обади се сега и цитирай този код 668856
Виж всички обяви в imoteka.bazar.bg или тук
Особености
Тухла
Асансьор
За контакт:
088 21 21 488
Брокер:
Офис 'пл. Света Неделя' Имотека София
0882 121 488
Офис: София, Център, пл. Света Неделя 4, ет.1
Още оферти от брокера: Продава | Дава под наем | Купува | Наема
Агенция:
ИМОТЕКА
0882 121 488
ИМОТЕКА logo
Медал за прослужено време
В imot.bg от 2015 г.
imoteka.imot.bg
Адрес:
област София, гр. София, пл. Света Неделя 4
http://www.imoteka.bg
ИЗПРАТИ ЗАПИТВАНЕ
ИЗПРАТИ ЗАПИТВАНЕТО

Продава 1-СТАЕН
град София, Малинова долина
Обява: 1a175878002557731

79 312 €
155 120.79 лв.
История на цената
(1 983 €, 3 878.41 лв./m2)

Не се начислява ДДС
ЗАПАЗИ ОБЯВАТА

Местоположение: град София, Малинова долина